Codice CP/995 - LUVINATE (VA): porzione di casa ristrutturata
    LUVINATE (VA): CASA + IMMOBILIARE propone in vendita porzione di casa, situata in una posizione tranquilla e ben servita, a soli 15 minuti dal centro di Varese.
    La casa è completamente ristrutturata e offre un ingresso indipendente con doppio accesso, rendendola perfetta per chi cerca privacy e comodità. Libera e abitabile da subito, questa proprietà è ideale per famiglie o per chi desidera uno spazio versatile.

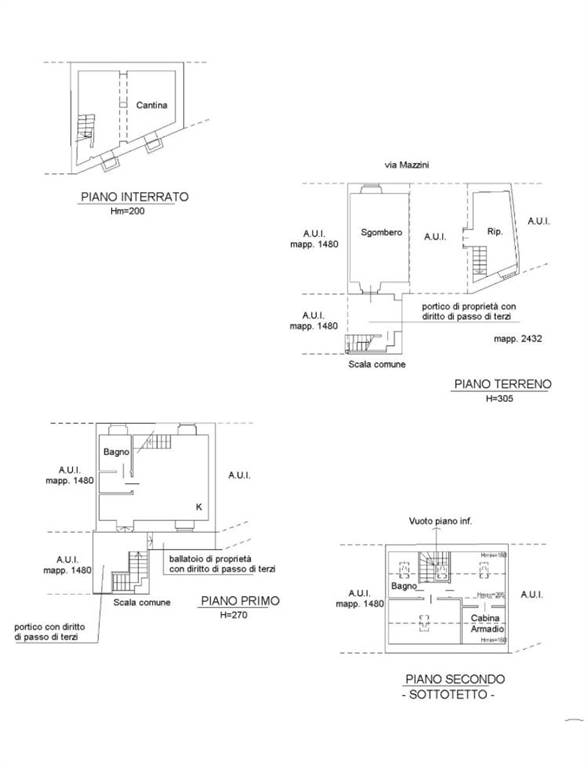
    Al piano terra, troverai un ampio locale ad uso tavernetta o hobby, perfetto per trascorrere momenti di relax. L'accesso diretto al primo piano tramite scala interna ti conduce a una zona living luminosa, con cucina a vista e un disimpegno che conduce a un bagno finestrato.

    La zona notte mansardata al secondo piano è caratterizzata da travi a vista e dotata di velux, creando un'atmosfera accogliente e suggestiva. Qui trovi due camere da letto, una cabina armadio e un moderno bagno con doccia.

    All'esterno, un grazioso spazio è dedicato a pranzi e cene estive, ideale per godere del bel tempo. La proprietà include anche un ampio box, lavanderia e cantina, senza spese condominiali. Con una superficie commerciale di 108 m² e 4 locali, questa villetta è la scelta perfetta per chi cerca un'abitazione moderna e funzionale. Non perdere l'opportunità di visitarla!

    • Prezzo
      175.000 EUR
    • Metri quadri
      100
    • Classe
      G (321,12 [kWh/m²a])
    • Locali
      4
    • Mq Commerciali
      100
    • Box
      1
    • Stato Immobile
      Ristrutturato
    • Grado
      Signorile
    • Posizione
      Centro Storico
    • Piano
      Piano Terra
    • Totale Piani
      Tre
    • Lati Liberi
      3
    • Giardino
      No
    • Arredi
      Non Arredato
    • Tipo Soggiorno
      Doppio
    • Tipo Cucina
      A Vista
    • Riscaldamento
      Autonomo
    • Tipo Riscaldam.
      Caldaia
    • Tipo Impianto
      Radiatori
    • Fonte Energetica
      Metano
    • Acqua Calda
      Autonoma
    • Raffrescamento
      No
    • Infissi
      Legno Doppio Vetro
    • Serramenti
      Buono
    • Persiana
      Persiana Legno
    • Pavim. Giorno
      Ceramica
    • Pavim. Notte
      Parquet
    • Pavim. Cucina
      Ceramica
    • Pavim. Bagno
      Ceramica
    • Accesso Disabili
      No
    • VIA MAZZINI 1, Luvinate (VA)