Codice CP/994 - VARESE: Semi-centrale, ampio 5 locali
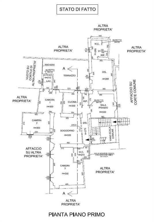
    In contesto d'epoca, proponiamo particolare appartamento di generose dimensioni, posto al piano primo e composto da: ingresso, soggiorno, cucina, disimpegno, studio, tre camere e tripli servizi. Terrazzo riservato di ca. 25 mq. e box singolo. Termoautonomo.
    • Prezzo
      210.000 EUR
    • Metri quadri
      180
    • Spese condominiali (annue)
      1.500 EUR
    • Classe
      G (250,24 [kWh/m²a])
    • Locali
      5
    • Mq Commerciali
      180
    • Box
      1
    • Mq Box
      15
    • mq Terrazzo
      25
    • Stato Immobile
      Buono
    • Grado
      Medio
    • Piano
      Primo
    • Orientamento
      Sud Nord
    • Totale Piani
      Due
    • Lati Liberi
      3
    • Tipo Soggiorno
      Soggiorno
    • Tipo Cucina
      Abitabile
    • Riscaldamento
      Autonomo
    • Tipo Riscaldam.
      Caldaia
    • Tipo Impianto
      Radiatori
    • Fonte Energetica
      Gas
    • Acqua Calda
      Autonoma
    • Infissi
      PVC Doppio Vetro
    • Serramenti
      Buono
    • Persiana
      Tapparella Legno
    • Pavim. Giorno
      Ceramica
    • Pavim. Notte
      Parquet
    • Pavim. Cucina
      Ceramica
    • Pavim. Bagno
      Ceramica
    • Accesso Disabili
      Rampa
    • Via Walder 36, Varese (VA)